液壓、氣動角式快開排泥閥,是一種由液壓源或氣動源作執行機構的角型截止類閥門。通常成排安裝在沉淀池底部外側壁,用以排除池底沉淀的泥砂和污物。J744X液壓角式快開排泥閥液壓缸之活塞為L形皮碗,密封性能好,經久耐用,閥門密封副亦為橡膠密封,無泄漏。J744X液壓角式快開排泥閥還可通過電動二位四通換向電磁閥實現遠程控制。J744X液壓角式快開排泥閥操作方便,安全可靠。
當前水力控制閥被廣泛用于石油化工、化工、煤氣、天然氣、液化石油氣、暖通行業以及一般工業中。
![]() |
![]() |
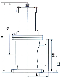
| J744X液壓角式快開排泥閥 結構示意圖 | J744X液壓角式快開排泥閥 安裝示意圖 |
| 零件名稱 | 月體、月蓋 | 膜片壓板、閥盤 | 閥桿 | 膜片 |
|---|---|---|---|---|
| 材 料 | 鑄鐵、球鐵、碳鋼 | 球鐵、青銅 | 不镕鋼 | 尼龍強化橡膠 |
| DN | 80 | 100 | 150 | 200 | 250 | 300 | 350 | 400 |
|---|---|---|---|---|---|---|---|---|
| H | 480 | 500 | 620 | 735 | 805 | 940 | 1100 | 1200 |
| L1 | 135 | 145 | 175 | 225 | 260 | 280 | 305 | 340 |
| L2 | 125 | 125 | 145 | 185 | 205 | 245 | 270 | 310 |
溫馨提示:
本文中所有文字、數據、圖片均只適用于參考。需要查看更多的J744X液壓角式快開排泥閥 性能參數、結構尺寸參數、價格等詳情,或要求印刷樣本,請聯系我們。
主營產品:氣動調節閥 - 電動調節閥 - 自力式調節閥
版版權所有 © 上海大田閥門管道工程有限公司
地址:上海市浦東新區川宏路528號宏圖大樓5樓


