TYG型過濾器以確保所有設備管道上安置免受因管道內雜質、鐵銹、焊屑等帶來的堵塞和損壞,從而避免了維修費用和生產損失。此類過濾器適用于蒸汽、空氣、水、油品等系統管道中。保護各種計量儀器、泵機、閥門、疏水器等設備。

| 主要零件部件材料表 | Parts 零件名稱 |
Materials 材料 |
|---|---|---|
| Body 閥體 |
carbonstoeIStainlessSteeI Fram bronze.brass 碳鋼、不銹鋼、黃、青銅 |
|
| Gauze Filter Cap 濾網蓋 |
carbonstoelStainlessSloel 碳鋼、不銹鋼 |
|
| Filter Core Net 濾芯網 |
Stainless Steel 不銹鋼 |
|
| Gaske r 墊片 |
Metal graphite 金屬石墨 |
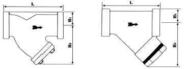
| Model 產品型號 |
Nominal Diameter(DN) 公稱通徑 |
Connection 連接方式 |
Nominal Pressure(MPa) 公稱壓力 |
Max.AIlowable TMP(℃) 最高允許溫度 |
External Dimensions(mm) 外形尺寸 |
||
|---|---|---|---|---|---|---|---|
| L | H1 | H2 | |||||
| ATGN W-16 64A | 15—20 25 |
Thread Socket weld 螺紋承插焊 |
1.6—6.4 | 425 | 90 100 |
20 23 |
78 88 |
| ATGN W-16 64A | 32—40 50 |
Thread Socket weld 螺紋承插焊 |
1.6—6.4 | 425 | 130 150 |
32 38 |
120 128 |
| ATGN W-16 25A | 65 80 |
Thread Socket weld 螺紋承插焊 |
1.6—2.5 | 350 | 210 230 |
44 54 |
180 192 |
| ATGN W-16 25B | 15—20 25 |
Thread Socket weld 螺紋承插焊 |
1.6—2.5 | 350 | 75、85 90 |
20 23 |
75 85 |
| ATGN W-16 25B | 32—40 50 |
Thread Socket weld 螺紋承插焊 |
1.6—2.5 | 350 | 120 140 |
32 38 |
113 122 |
| ATGN F-16 25C | 15—20 25 |
Thread Flange 螺紋法蘭 |
1.6—2.3 | 250 | 85 95 |
22 25 |
78 88 |
| ATGN F-16 25C | 32—40 50 |
Thread Flange 螺紋法蘭 |
1.6—2.3 | 250 | 130 150 |
35 40 |
115 125 |
主營產品:氣動調節閥 - 電動調節閥 - 自力式調節閥
版版權所有 © 上海大田閥門管道工程有限公司
地址:上海市浦東新區川宏路528號宏圖大樓5樓
